
由维也纳Jadric Architektur建筑事务所与韩国1990 uao室内设计事务所联袂打造的首尔摄影艺术博物馆,将于今年5月底正式向公众开放。它与毗邻的AI智能博物馆RAIM共同构成首尔的全新文化地标。

设计团队从建筑与摄影的联系中提取灵感:摄影是用光作画,而建筑则是光中形态的展现。因此设计团队把建筑与摄影视为共生,博物馆以充满动感的雕塑形态,模拟摄影中“快照”的瞬间定格,其外观随观者视角变换而流动,仿佛一幅动态捕捉的城市影像。


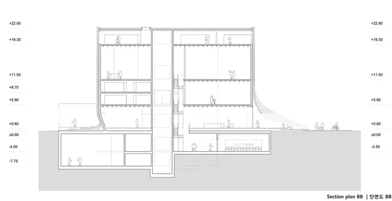
建筑内部的功能单元逻辑清晰、使访客能够自然地定位方向,采用“白色立方”的概念,打造出灵活多变,适用于任何形式的展示空间,并舒适地穿梭于展览区域。



为强化光影互动,设计摒弃传统屏幕,创新采用背光混凝土肋条结构,使自然光透过精密排布的缝隙洒落,在墙面上投射出律动的阴影。建筑本身因而化作一件“会呼吸的光影装置”,与摄影艺术对光的永恒追求遥相呼应。


首尔摄影艺术博物馆不仅是一座展示空间,更将成为跨领域、跨文化对话的催化剂。


