

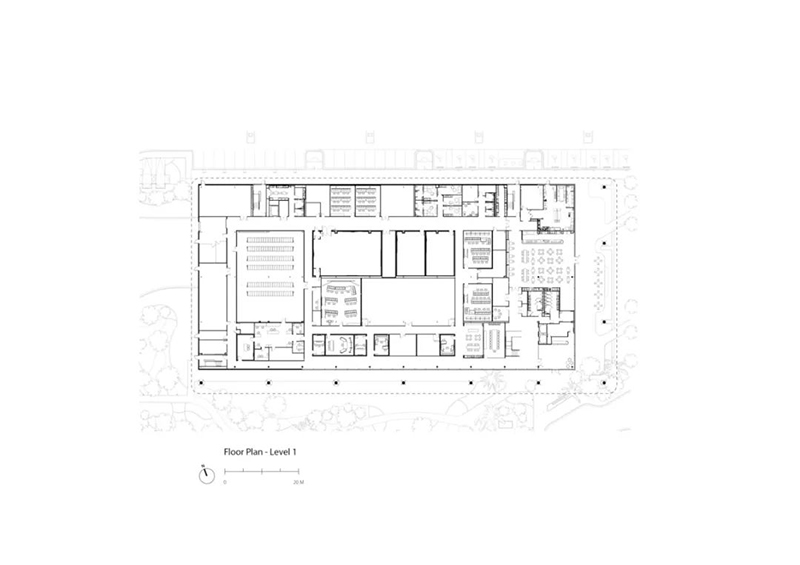
Foster + Partners设计的PGA TOUR Studios坐落于佛罗里达州蓬特韦德拉海滩,占地约15,320平方米,三层楼高,形成了一个综合性的园区布局。

这座新建筑位于TPCSawgrass球员体育场球场南侧,紧邻 PGA巡回赛总部大楼,后者也是由 Foster +Partners 设计。建筑采用与总部一致的设计语言,南、东立面设有宽敞的柱廊,大型悬挑屋顶提供遮荫,同时,玻璃幕墙确保了充足的自然采光,并可眺望水景及周边园区。园区内设有景观步道连接两座建筑,方便员工与访客通行。建筑材料选用白色金属、混凝土与玻璃,以保持整体风格的协调统一。

PGA TOUR Studios的设计精髓在于其整体的轻盈感和流动感,虽然建筑本身极为宽大,但通过巧妙的比例,建筑在视觉上不会显得沉重。室内设计方面,建筑采用了极简主义与现代科技的融合。大楼内部空间的布局以开阔、灵活为主。


PGA TOUR Studios采用了钢结构与混凝土为基础,确保了稳固性与长期使用的可靠性。布局设计方面,PGA TOUR Studios能够同时监控并显示多达144个视频和音频信号,以满足制作需求。此外,灵活的音频控制室支持多种节目制作格式。内部空间宽敞且可灵活调整,方便未来根据需求进行变化。PGA TOUR Studios内还配有八间制作室、控制室、LED演播室、定制视频查看中心、34座影院和播客录音室。

设计团队通过采用低碳材料和先进的节能技术,实现了13%的能耗减少。为进一步减少碳排放,建筑还设有高效的能源管理系统,并在停车场内提供电动车充电服务,支持可持续出行。此外,设计团队采用了创新的雨水管理系统,使周围环境不受影响。通过园林绿化和灌溉策略的综合应用,极大降低了对水资源的依赖。


建筑设计注重使用经过严格评估的材料,超越了LEED标准要求,与总部大楼一样,获得了LEED BD+C金级认证。建筑材料的选择都考虑了长期可持续性,确保建筑的安全性与健康性。此外,亲生物设计元素如天然材料、室内绿化和室外景观被广泛运用。









设计师:Foster + Partners
项目地点:弗罗里达州
文章转自:青年建筑