
Tyree能源技术大楼位于新南威尔士大学主校区入口处,这里是校园大道与安扎克大道的交汇处。

该建筑地理位置具有重要的战略意义,位于三个相互连接的城市区域的交叉口,每个区域都有独特的景观与建筑特征,它们与建筑形式交织重叠,通过差异化的形式、尺度和细节复杂性进行回应。建筑的每个立面都不同,并通过环境响应来展现其设计特点。

建筑与现有的植物相互交织,一系列形体片段沿着安扎克大道的正面展开,形成了独特的开放和欢迎姿态。这些形态构建了一种城市过渡或共生的融合,从南侧与街道平行的建筑群延续到北侧葱郁的校园景观。Spooner教授主导了这一设计工作,在对校园大道的设计时采取了谨慎的处理方案,旨在增强这一重要景观的特色——这是大学身份的重要组成部分。通过创建一个连续的高架平台,配以朝北的阶梯式座位,建筑实现了与校园大道的过渡,并在视觉上延伸了地平面,将其融入建筑内部。

在建筑上方,一座具有戏剧性轮廓的屋顶似乎漂浮在树冠之上,其水平基准线与校园大道旁榕树和木棉树的成熟高度相吻合。南侧,一系列具象化的矩形体块映射了内部实验室模块的结构,并向后退让以延展Day大道的街景至场地内。东侧的实验室模块则进行了旋转,以呼应Village Green的朝向。

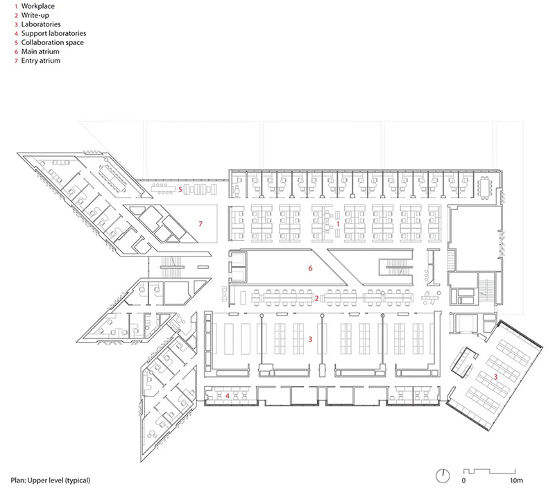
室内设计和空间规划的核心原则为:互动性、透明性和灵活性。建筑师通过宽敞的通道、社交中心、会议室、超大楼梯、桥梁及互通的实验室,促进了使用者之间的互动。建筑的功能通过立面和室内设计中不同程度的透明性实现开放或封闭。实验室空间被设计成灵活的模块,可以根据需要分离、连接或组合,满足未来灵活多变的空间需求,建筑师还采用了跨学科、协作和综合的可持续性方法,从最初的竞赛设计方案一直延续到后期文件编制、施工及运营阶段。该建筑在设计初期就将可持续性置于核心位置,以支持居住者开展世界领先的研究,这一成就得到了澳大利亚绿色建筑委员会的认可,并授予6星级绿色建筑认证(教育类 v1)。

我们的设计理念在功能性与灵活性之间寻找平衡,旨在为教学、科研和工作场所创造最佳实践的环境,同时契合大学对这一重要门户位置的战略愿景。
宽敞的中庭、交叠的空间以及对景观和校园远景的开放视野,最大限度地提升了人员流动性和可见性。通过建筑形式与景观的丰富交织,空间与光线得到了精妙的调和,实现了建筑与景观的和谐融合。


文章转自:专筑